Top 30+ Mẫu thiết kế nhà 2 tầng 3 phòng ngủ đẹp & phổ biến nhất
Thiết kế nhà 2 tầng 3 phòng ngủ luôn là sự lựa chọn yêu thích nhất của gia đình đồng người. Nhà ống dạng 2 tầng tô điểm thêm sự đa dạng trong thiết kế kiến trúc. Tạo nên nét đẹp riêng trong từng ngôi nhà. Dưới đây là các mẫu nhà 2 tầng đang rất thịnh hành nhất hiện nay bạn nên thử xem qua và tham khảo nhé.
Mẫu nhà ống 2 tầng 3 phòng ngủ 1 phòng thờ
Như chúng ta đã biết phòng thờ là một nơi linh thiêng. Với đạo lí uống nước nhớ nguồn - chim có tổ người có tâm. Trong tâm thức của người dân Việt Nam dù căn nhà nhỏ hay lớn thì vẫn để một không gian để nhớ đấng sinh thành.


Vì thế thiết kế nhà 2 tầng 3 phòng ngủ chúng ta cần thể hiện sự trang nghiêm chỉnh chu.

Để giảm bớt diện tích thì tầng 1 sẽ có phòng khách, phòng bếp, 1 phòng ngủ, 1 WC. Đặc biệt là tầng 1 có phòng ngủ cuối nhà, cạnh khu vực sân sau giúp thoáng khí và mắt mẻ hơn.

Tầng 2 gồm có 2 phòng ngủ, 1 tolet, phòng thờ, 1 WC, sân thượng, hướng sân phơi có ánh sáng thuận tiện cho việc giặt giũ và phơi đồ, 1 phòng ngủ được thiết kế cạnh sân, Wc được thiết kế cạnh cầu thang, bên cạnh là phòng thờ.

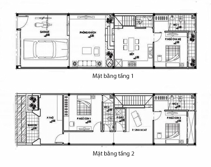
Mẫu nhà ống 2 tầng 3 phòng ngủ có gara ô tô
Mặt bằng nhà 2 tầng 3 phòng ngủ với thiết kế gây ấn tượng. Mẫu này cần được xây dựng trên một diện tích đất khá rộng rãi. Với thiết kế có garage sẽ giải quyết được các vấn đề để xe cho gia chủ.

Để đảm bảo cho không gian ngôi nhà thì tầng trệt nên thiết kế 2 phòng khách, 1 phòng ngủ, 1 bếp, 1 wc. Cần thiết kế phòng bếp ở sau cùng, bởi nó sẽ làm giúp làm giảm mùi thức ăn trong nhà.

Tầng 2 sẽ được thiết kế với 2 phòng ngủ, 1 phòng thờ với ban công nhỏ. Thiết kế một ban công nhỏ giúp cho không gian thoáng đãng mang lại cảm giác tươi mới cho căn nhà.

Mẫu nhà ống 2 tầng 3 phòng ngủ có ban công
Mẫu thiết kế nhà 2 tầng 3 phòng ngủ có ban công được giới chuyên môn đánh giá khá cao và cả người dùng khá yêu thích.

Tầng trệt được thiết kế với 1 phòng khách, 1 phòng ngủ, 1 phòng bếp và 1 phòng WC.
Lầu 1 sẽ được tối ưu không gian bởi 2 phòng ngủ, 1 phòng thờ và 2 phòng WC.

Việc sử dụng ban công rộng là nơi bạn có thể kê bàn để thư giãn nghỉ mát. Ban công không chiếm quá nhiều diện tích những nó vẫn là địa điểm được nhiều được yêu thích nhất bởi đem lại tính thẩm mỹ cho ngôi nhà.


Mẫu nhà ống 2 tầng 3 phòng ngủ có tum
Đây là mẫu thiết kế tận dụng được tối đa mặt tiền của ngôi nhà để tạo nên cảm giác thông thoáng giúp ngôi nhà ở nên hiện đại hơn.

- Tầng 1: Thiết kế 1 phòng khách, 1 phòng ngủ kèm 1 phòng bếp và 1 phòng WC.
- Tầng 2: 2 phòng ngủ, 1 WC, 1 phòng thờ, 1 sân phơi.

Tầng tum được thiết kế với sân thượng để gia chủ có thể trồng rau, trồng cây cảnh, đây là mọt trong những ý tưởng tuyệt vời để nhà có thêm diện tích và thư giẵn hơn.


Mẫu nhà ống 2 tầng 3 phòng ngủ có sân vườn
Nhà ống có sân vườn đang rất được ưa chuộng nhất hiện nay bởi xu thế con người ngày càng thích gần gũi với thiên nhiên. Không gian sống của con người cảm thấy thoải mái hơn.

Sân trước nhỏ bạn có thể làm điểm vui chơi, giải trí cho cả gia đình hoặc có thể trồng nhiều loại cây cảnh để không gian hòa với thiên nhiên.

Tầng 1 được thiết kế phòng khách, 1 phòng ngủ, phòng bếp và nhà vệ sinh. Tầng trệt kết hợp với khoảng sân có trồng thêm cây cảnh sẽ là địa điểm sinh hoạt chung lý tưởng cho gia đình.

Tầng 2 2 phòng ngủ, 1 bàn thờ, 1 WC sát phòng và cầu thang được tối ưu nội thất đơn giản nhất có thể.

Mẫu nhà biệt thự 2 tầng 3 phòng ngủ
Mẫu nhà 2 tầng 3 phòng ngủ biệt thự nhận được khá nhiều sự yêu thích của khách hàng. Với thiết kế tiện nghi, thuận lợi, không gian sử dụng trong phòng đều rộng rãi thoáng, đẹp, đơn giản tự nhiên phù hợp với không gian nhu cầu sử dụng với gia đình có nhiều thành viên.

- Tầng 1: sân trước, phòng khách, phòng bếp, 1 phòng ngủ, 1 WC
- Tầng 2: 2 phòng ngủ, 1 WC, phòng thờ,


Mẫu nhà 2 tầng mái thái 3 phòng ngủ
Mẫu bản vẽ nhà 2 tầng 3 phòng ngủ là một trong những mẫu bản vẽ được khá nhiều gia đình đang tìm kiếm.
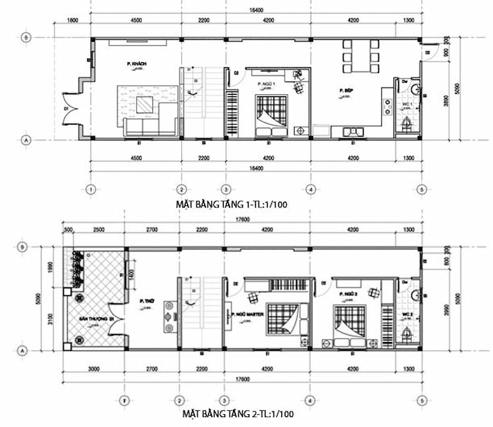
Phối cảnh mặt tiền mẫu nhà 2 tầng mái thái 3 phòng ngủ có sự hài hòa thống nhất giữa kiến trúc nhà đẹp và thiết kế cảnh quan sân vườn.

Bản vẽ mặt bằng tầng 1: Mặt bằng công năng khoa học tầng 1 của mẫu nhà 2 tầng mái thái bao gồm: phòng khách, phòng ăn và bếp nấu ăn, 01 phòng ngủ và nhà vệ sinh chung. Cầu thang thông tầng được thiết kế ngay cạnh góc nhà, phía sau không gian tường bếp.

Bản vẽ mặt bằng tầng 2: Mặt bằng công năng khoa học tầng 2 của mẫu nhà 2 tầng mái thái bao gồm: 2 phòng ngủ được thiết kế nhà vệ sinh khép kín, 01 nhà vệ sinh chung và 1 phòng sinh hoạt chung.


Mẫu nhà 2 tầng 3 phòng ngủ 4x15m
Mặt tiền nhà 2 tầng 3 phòng ngủ gây ấn tượng bởi lối kiến trúc hiện đại, với các khối hình chắc chắn, được đánh giá cao bởi thiết kế đẹp mắt tại tầng 2.

Tại tầng trệt, phòng khách bố trí nội thất đơn giản, đầy tiện nghi. Kế cầu thang là một phòng ngủ, phòng bếp bố trí cạnh sân sau để giảm bớt mùi thức ăn.


Tầng 2, Mỗi không gian sẽ được chia ra khác nhau. Bên trái cầu thang là gian phòng thờ. Bên phải là 2 căn phòng ngủ và 1WC khá thuận tiện.

Thiết kế nhà ống 2 tầng 3 phòng ngủ 5x15m
Mẫu nhà ống 2 tầng 3 phòng ngủ 5x15 ngôi nhà được lấy ý tưởng từ sự đơn giản và hiện đại. Hình khối ngôi nhà nhỏ nhắn với những khối tường vuông vức, cao ráo.

- Tầng 1: Phòng bếp, phòng ngủ, 1 WC, phòng khách rộng rãi thoáng mát.
- Tầng 2: 2 phòng ngủ sát nhau ngăn bởi cầu thang là phòng thờ, phía sau là 1 WC.

Sàn tầng hai với khối ban công đua rộng giúp che nắng, che mưa cũng như khiến cho hình khối của ngôi nhà trở nên cân đối hơn.


Mẫu nhà 2 tầng 3 phòng ngủ 5x20m
Ngay tại vị trí cửa chính đi vào là phòng khách, bên cạnh là phòng sinh hoạt chung. Phòng sinh hoạt chung như một không gian khép kín, giúp cho không gian sinh hoạt của cả gia đình trở nên ấm cúng hơn.

Cạnh cầu thang là một phòng ngủ, với thiết kế đơn giản và tiện nghi. Phòng bếp và phòng ăn được bố trí đơn giản, đảm bảo nhu cầu của gia chủ. Cuối nhà là WC, đảm bảo cho quá trình sinh hoạt của các thành viên trong gia đình.

Từ cầu thang tầng trệt đi lên, 2 phòng ngủ được bố trí 2 bên cầu thang, Ngoài ra, trên cầu thang còn bố trí bàn thờ nhằm tối ưu hóa không gian một cách triệt để.

Sân phơi đồ có ánh sáng chiếu vào, giúp cho việc giặt giũ và phơi đồ dễ dàng hơn. WC được thiết kế cạnh ban công, giúp cho việc sinh hoạt trở nên thuận tiện.

Nói chung, bạn muốn ngôi nhà nhà 2 tầng 3 phòng ngủ của mình thiết kế hiện đại sang trọng hay cổ điển gần gũi với thiên nhiên thì chắc hẳn các mẫu phía trên sẽ giúp bạn có thêm cho mình nhiều ý tưởng để có một ngôi nhà đẹp như mơ nhé. Nếu thắc mắc hay các vấn đề liên quan hãy để câu hỏi phía dưới chúng tôi sẽ giải đáp cho bạn trong thời gian sớm nhất nhé, và đừng quên theo dõi những bài viết mới nhất về xây dựng - kiến trúc tại meeyland nhé.
| TỔNG HỢP NHÓM NHÀ 2 TẦNG | |