Top 15+ Mẫu thiết kế nhà phố 5x16m ĐẸP & HIỆN ĐẠI
Mẫu nhà phố 5x16m là một trong những mẫu nhà phổ biến nhất hiện nay. Mẫu nhà này thích hợp với nhiều gia đình có từ 4-6 thành viên. Để có một ngôi nhà phố 2 tầng đẹp và tiện nghi thì chắc chắn không thể thiếu những bản vẽ chuyên nghiệp. Dưới đây là những mẫu thiết kế nhà phố 5x16m ĐẸP & HIỆN ĐẠI mà bạn có thể tham khảo.
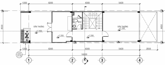
Mẫu nhà phố 1 trệt 1 lầu 5x16
Đối với những gia đình có ít thành viên thì những mẫu nhà có diện tích như thế này thì rất phù hợp. Sự trẻ trung phóng khoáng trong kiến trúc ngoại thất, cùng với đó là không gian sống thoáng, tiện nghi chính là ưu điểm cho mẫu nhà như thế này.

Đồi với tầng trệt thì mặt tiền phía trước có gara để chơi cây cảnh hoặc để xe, tiếp theo sẽ là phòng khách, bếp, 1 phòng ngủ, WC,

Tầng 1: Tận dụng không gian tầng này sẽ có 2 phòng ngủ, 2 WC, phòng thờ, ban công và khu đọc sách.

Mẫu nhà đi theo kiến trúc hiện đại, chính vì thế mẫu nhà phố 1 trệt 1 lầu 5x16 nằm trong những mẫu nhà phố 5x16m được chú trọng vào việc làm nổi bật các mảng tường khá vuông vắn.
Gam màu trắng đen làm chủ đạo được thu hút người nhìn. Hệ thống các cửa sổ làm nổi bật theo cho ngôi nhà, góp phần làm cho ngôi nhà trở nên độc đáo hơn.
Mẫu nhà phố 2 tầng 5x16 hiện đại
Với diện tích 5m, chiều sâu nhà 16m nhiều gia đình lựa chọn phương án thiết kế mẫu nhà ống 2 tầng hiện đại. Dưới đây là một số mẫu nhà dành cho bạn tham khảo:
Mẫu nhà ống 2 tầng 3 phòng ngủ 5x16m
Nếu nhà chỉ với 5x16m thì bạn sẽ thiết kế như thế nào, đây là điều khiến nhiều gia chủ phải đau đầu. Chúng tôi sẽ gợi ý cho bạn mẫu nhà ống 2 tầng 3 phòng ngủ 5x16m dưới đây nhé:

Đối với tầng 1 sẽ có 1 phòng khách, phòng bếp, 1 phòng ngủ, 1 WC

Đối với tầng 2: 2 phòng ngủ, phòng thờ, 1 WC. Đối với nhà này phù hợp từ 4-5 thành viên.

Phối cảnh kiến trúc không quá cầu kỳ hay phô trương, với lối thiết kế nhẹ nhàng nhưng mang một tính đồng nhất trong tổng thể. Kết hợp với đó là các vật liệu hiện đại, gần gũi với môi trường.
Và không quên sử dụng cây xanh vào trong lối thiết kế này. Trồng cây xanh không chỉ tăng tính thẩm mỹ mà nó còn đem đến bầu không khí trong lành và dễ chịu hơn cho ngôi nhà.
Mẫu nhà 2 tầng 5x16m có gara ô tô
Với quỹ đất không có nhiều, bên cạnh đó để tiết kiệm chi phí trong xây dựng. Đối với mẫu nhà phố 5x16m thường thiết kế theo kiểu hiện đại và sinh động.

Với mặt bằng tầng trệt sẽ có không gian sân phía trước, gara, sâu bên trong sẽ có phòng khách, phòng bếp.

Tầng 1: 3 phòng ngủ, 2 phòng vệ sinh.

Mặt tiền mẫu nhà 2 tầng có gara được sử dụng tông màu trắng làm chủ đạo kết hợp với những chi tiết thiết kế vô cùng trẻ trung, xinh xắn mang lại nét đẹp hài hòa nhất cho toàn bộ kiến trúc.
Mẫu nhà phố 5x16m 2 tầng phía trươc có gara rất tiện lợi mặt khác tạo khoảng cách mặt tiền đường phía trước để tránh ồn ào.
Mẫu thiết kế nhà phố 3 tầng 5x16
Hiện nay đất chật người đông, nếu gia đình có số lượng người trên 5 thành viên thì lựa chọn mẫu nhà 3 tầng là vô cùng hợp lý . Dưới đây là một số mẫu thiết kế nhà phố 3 tầng 5x16 cho bạn tham khảo:
Mẫu nhà phố 3 tầng 5x16m 2 phòng ngủ
Đối với mẫu thiết kế nhà phố 3 tầng 5x16 được thiết kế vô cùng hoàn hảo. Đơn giản bởi trong một quỹ đất chật hẹp thì thiết kế 3 tầng với diện tích 5x16m sẽ giúp cho gia chủ có được một căn nhà hiện đại, thoáng mát và đầy đủ tiện nghi.

Tầng 1: Phòng khách, phòng bếp, 1 WC

Tầng 2: 1 phòng ngủ 2 WC và một phòng giải trí

Tầng 3: Phòng thờ, sân thượng, sân phơi, kho

Ngôi nhà thiên về hiện đại nhằm đáp ứng được nhu cầu sử dụng của con người hiện nay. Mẫu nhà phố 5x16m 3 tầng 2 phòng ngủ có lối kết hợp màu sắc vô cùng sang trọng với những ô cửa sổ, cùng với các thanh chắn an toàn, chi tiết trang trí đè lên mái.
Mẫu nhà phố 3 tầng 5x16m 4 phòng ngủ
Mẫu nhà phố 3 tầng 5x16m 4 phòng ngủ đang được khá nhiều nhà lựa chọn đối với nhà có 5-6 thành viên. Mẫu thiết kế này khá độc đáo khi có thiết kế thêm gara trước sân. Nếu gia chủ yêu thích tiểu cảnh thì có thể tận dụng khu này để vừa làm gara vừa trồng cây.

Tầng 1: Gara, phòng khách, phòng ăn và bếp, 1 WC

Lên tầng 2: cấu trúc không gian có sự thay đổi 2 phòng ngủ, 1 WC

Tầng 3: Bố trí bao gồm sân thượng, phòng thờ

Mẫu nhà phố 3 tầng 5x16m 4 phòng ngủ sửu dụng màu trắng làm chủ đạo kết hợp với màu xám tạo nên những đường nét hài hòa cho ngôi nhà. Bên cạnh đó các kiến trúc sư thiết kế các ô vuông cửa sổ làm nổi bật thêm cho không gian ngôi nhà.
Không quên sử dụng cây xanh vào nhằm mang đến cho ngôi nhà một bầu khống khí trong lành và thoáng đãng.
Mẫu nhà phố 3 tầng 5x16m có tầng tum
Trong đời sống hàng ngày sử dụng nhà phố 3 tầng 5x16m có tầng tum đòi hỏi đáp ứng những yếu tố không gian rộng rãi, ấm cúng, mang đến sự thân thiện.

Tầng 1 được bố trí phòng khách, phòng bếp, sân trước, sân sau.

Tầng 2 sẽ có 2 phòng ngủ hai phòng ngủ sử dụng chung một phòng vệ sinh ở cuối mặt bằng với một lối đi chung xuyên suốt giữ nguyên trục bố trí ở tầng trệt.

Tầng 3 thiết kế phòng vệ sinh và khoảng sân thượng vô cùng rộng rãi.

Mẫu nhà phố 3 tầng có tum của mẫu nhà phố 5x16m có thiết kế kiêu sa lộng lẫy với phong cách thiết kế hiện đại sang trọng với kiểu nhà ống 1 trệt hai lầu có tum.
Với cách thiết kế này bạn sẽ có riêng một khu vực để xe à làm khu sân vườn trang trí cho ngôi nhà, không gian diện tích ngôi nhà được tích hợp thiết kế nhiều công năng muốn cho diện tích ngôi nhà thoáng mát
Mẫu nhà phố 3 tầng 5x16m có gara
Dựa vào nhu cầu của các gia đình hiện nay, một nơi để xe nhỏ gọn sẽ là lựa chọn hoàn hảo. Việc dành toàn bộ không gian làm gara là nơi để xe giúp có thêm nhiều diện tích sử dụng hơn cho ngôi nhà.

Với mặt bằng tầng 1 gần 1 nửa không gian là gara, từ sảnh bước vào là phòng khách, phòng bếp, phía sau 1 phòng vệ sinh.

Mặt bằng tầng 2: phòng bếp, phòng khách, 1 WC

Mặt bằng tầng 3: 2 phòng ngủ, 2 WC, góc học tập

Có nhiều cách để bố trí chỗ để xe ô tô như xây dựng hầm để xe, gara trong nhà, chừa chổ để xe trước sân hay để bên hông nhà.
Việc chừa sân trước trong trường hợp này có hiệu quả không gian khi rút ngắn tổng diện tích xây dựng, giúp tiết kiệm chi phí xây dựng cùng với việc tạo sự thông thoáng cho căn nhà hơn khi cách xa nhà với đường lộ.
Mỗi một mẫu nhà phố 5x16m đẹp hiện đại luôn có bố trí phù hợp với nhu cầu sử dụng và điều kiện thi công của chủ nhân. Vậy trước khi lựa chọn mẫu thiết kế thì bạn nên xác định nhu cầu và tiềm lực của mình nhé. Nếu bạn có bất cứ thắc mắc nào hãy lên hệ ngay với chúng tôi để giải đáp cho bạn nhé.
| TỔNG HỢP NHÓM THIẾT KẾ | |