Top 10+ mẫu thiết kế nhà 1 trệt 1 lầu đẹp hiện đại
Các mẫu nhà 1 trệt 1 lầu đang được rất nhiều người yêu thích, lựa chọn. Bởi vì mẫu mã, kiểu dáng nhà 1 trệt 1 lầu đẹp hiện đại, tiện nghi và chi phí phù hợp với tài chính của nhiều hộ gia đình tại Việt Nam. Bài viết hôm nay sẽ giúp bạn có được cái nhìn toàn diện về các mẫu kiến trúc nhà đẹp 1 trệt 1 lầu.
1. Tiêu chuẩn thiết kế nhà 1 trệt 1 lầu

Ngôi nhà 1 trệt 1 lầu cần đảm bảo được không gian nghỉ ngơi cho tất cả các thành viên trong gia đình. Đồng thời phải tạo được sự thoáng đãng và thoải mái nhất.
Sau đây chúng tôi sẽ giúp bạn đưa ra các tiêu chuẩn thiết kế nhà đẹp 1 trệt 1 lầu cần bảo đảm các yếu tố sau:
Thứ nhất - Kết cấu: Ngôi nhà cần có kết cấu phù hợp với hướng đất, hướng nắng, hướng gió, chịu được áp lực từ thời tiết, động đất,... Nếu diện tích đất xây dựng nhỏ thì nên chọn kết cấu nhà ống để đảm bảo đầy đủ không gian sinh hoạt. Còn nếu diện tích đất thoải mái hơn thì có thể xây nhà theo nhiều phong cách như cổ điển, hiện đại, tân cổ điển,...
Thứ hai - Thi công: Cần đảm bảo dự tính cũng như kiểm soát được chi phí xây dựng căn nhà. Đồng thời quá trình thi công nên sử dụng vật liệu đảm bảo độ bền công trình và hoàn thành từng mục bình thường, tạo điều kiện sử dụng bình thường không bị biến dạng.
Thứ ba - Hoàn thiện: Khi việc xây nhà hoàn thiện thì cần được kiểm tra tổng thể một cách kỹ lưỡng để đảm bảo an toàn, tiện nghi và đúng theo thẩm mỹ mong muốn của gia chủ.
2. Đơn giá thi công nhà 1 trệt 1 lầu

Đơn giá thi công nhà 1 trệt 1 lầu giúp gia chủ dự trù được kinh phí cần đầu tư để xây dựng công trình. Trên thị trường hiện nay các nhà thầu thi công sẽ tính đơn giá xây dựng theo các phần cụ thể như sau:
Đơn giá xây dựng nhân công phần hoàn thiện: Cách thi công này chỉ cung cấp công nhân xây dựng hoàn thiện công trình tính tiền theo ngày công khoảng từ 1 triệu - 2.5 triệu/ m2. Tất cả các khâu về chi phí máy móc, thiết bị, vật tư, giám sát, kiểm duyệt,... đều do chủ nhà tự lo. Vậy nên khi chọn hình thức xây dựng nhà này thì gia chủ cần nắm rõ được kiến thức về mọi quy trình để có thể kiểm soát tiến trình cũng như chất lượng của ngôi nhà.
Đơn giá thi công xây dựng trọn gói phần hoàn thiện: Đây còn được gọi là gói xây dựng hoàn thiện, nghĩa là khách hàng không cần tốn chi phí hay thời gian để giám sát cũng như mua vật liệu xây dựng và nhân công. Tất cả quá trình thi công sẽ do nhà thầu đảm nhiệm, với mức dao động từ 4.5 triệu - 6 triệu/ m2.
3. Mẫu thiết kế nhà 1 trệt 1 lầu đẹp nhất
Hiện nay có rất nhiều mẫu thiết kế nhà 1 trệt 1 lầu đẹp theo nhiều phong cách khác nhau như hiện đại, tân cổ điển,... Nếu bạn đang tìm kiếm mẫu nhà đẹp để xây dựng mái ấm cho gia đình mình? Vậy hãy cùng tham khảo 11 mẫu thiết kế nhà 1 trệt 1 lầu đẹp nhất hiện nay ngay bên dưới nhé.

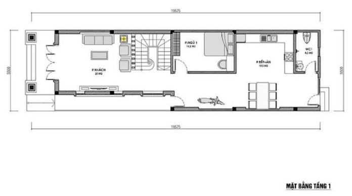
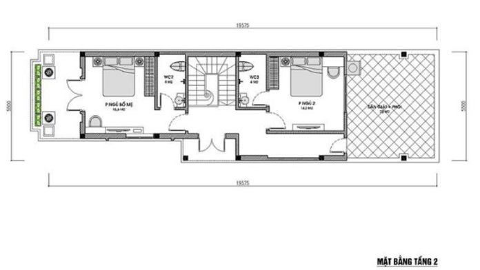
3.1. Mẫu nhà 1 trệt 1 lầu 5x20

Mẫu nhà 1 trệt 1 lầu 5x20 này với thiết kế mái thái, sang trọng, hệ thống tường rào cùng những trụ cột to bao quanh vừa thẩm mỹ vừa đảm bảo sự an toàn. Mẫu nhà này có được sự phối hợp hài hòa và cân đối từ màu sắc đến các chi tiết trang trí hiện đại rất tinh tế và cuốn hút.
Bản vẽ mặt bằng:


Chi phí xây dựng mẫu nhà này sẽ có sự chênh lệch khác nhau ở mỗi địa phương xây dựng. Tuy nhiên, cách tính chi phí xây dựng nhà 5x20 1 trệt 1 lầu vẫn được tính theo m2 với 2 cách cụ thể như sau:
Cách 1: Thi công và hoàn thiện phần thô với đơn giá khoảng từ 3 - 3,5 triệu đồng/ m2. Với cách này thì gia chủ cần nắm bắt được chi tiết cách tính chi phí từng hạng mục thi công và tiến trình thi công cũng cần được giám sát chặt chẽ.
Cách 2: Mướn nhà thầu đảm bảo mọi mặt về giám sát, thi công,... gia chủ chỉ cần đến ngày giờ hoàn thành vào ở là xong. Vậy nên cách này cũng có khoảng giá thực hiện cao hơn dao động từ 5 - 5,5 triệu/ m2.
Các bạn đừng quên tham khảo thêm những mẫu thiết kế vô cùng độc đáo khác về các mẫu nhà đẹp nhé.
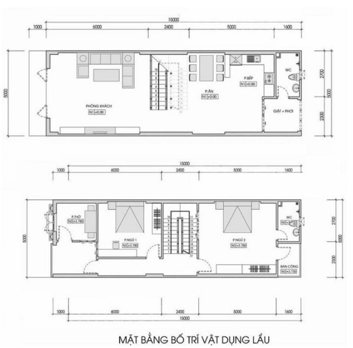
3.2. Mẫu nhà 1 trệt 1 lầu 5x15

Mẫu nhà này được thiết kế theo kiểu nhà khối nhỏ nhắn, đơn giản, cân đối. Sàng tầng 1 được đổ bê tông rộng giúp che nắng, mưa, đồng thời giúp nâng cao thêm không gian sử dụng.
Mặt tiền ngôi nhà thu hút bởi sự kết hợp màu sắc hoàn hảo giữa những gam màu đối lập. Cùng với đó là hệ thống cửa nhựa lõi thép cùng ban công được trang bị kính cường lực hiện đại, giúp cho ngôi nhà lưu thông không khí tốt và đón nhận được nắng gió tự nhiên.
Bản vẽ mặt bằng

Chi phí xây dựng nhà 1 trệt 1 lầu 5x15 cũng có 2 cách tính giá cụ thể gồm:
Thuê dịch vụ trọn gói trong khoảng từ: 5 triệu - 5.5 triệu/ m2
Khoảng giá tự thực hiện từ: 3 triệu - 3.5 triệu/ m2.
3.3. Mẫu nhà 1 trệt 1 lầu 6x20

Ngôi nhà với diện tích 6m x 20m được thiết kế theo phong cách hiện đại, vừa tối giản vừa sang trọng, mang đến không gian sống rộng rãi, thoải mái. Hệ thống mái thái đẹp mắt giúp chống nóng và chống thấm hiệu quả. Đồng thời kết hợp thiết kế cửa lớn sử dụng kính cường lực giúp tận dụng ánh sáng thiên nhiên tốt nhất.
Bản vẽ mặt bằng tầng:


Chi phí dự tính xây dựng mẫu nhà này với mức hoàn thiện cơ bản rơi vào khoảng trên dưới 900 triệu đồng.
3.4. Mẫu nhà 1 trệt 1 lầu 4x12

Mẫu nhà 4x12 này được thiết kế nhỏ gọn theo phong cách hiện đại, giúp tiết kiệm chi phí và phù hợp với không gian ở thành thị. Mặt tiền ngôi nhà tạo được điểm nhấn ấn tượng nhờ sự kết hợp độc đáo của các tone màu ấm.
Bên cạnh đó thiết kế ngôi nhà còn khéo léo kết hợp các ô vuông và chữ nhật để tạo khoảng trống giúp lấy ánh và gió mát cho toàn bộ căn nhà.
Bản vẽ mặt bằng thiết kế:

Với mẫu nhà này đơn giá hoàn thiện cũng có hai cách tính như sau:
Cách 1: Nhà thầu thi công từ 4.5 triệu - 5.5 triệu/ m2.
Cách 2: Áp dụng cách chủ nhà tự thi công giá khoảng từ 3 triệu - 3.5 triệu/ m2.
3.5. Mẫu nhà 1 trệt 1 lầu 1 tum

Phong cách thiết kế của mẫu nhà này hiện đại, tập trung vào các chức năng sử dụng, mang đến sự đơn giản vừa thẩm mỹ và cũng rất tinh tế. Tầng 1 của ngôi nhà có ban công trước thoáng đãng để gia chủ thư giãn, hít thở khí trời. Tầng thượng được thiết kế thành nơi lý tưởng để đọc sách, uống trà, tập yoga,... hay làm nơi hóng gió cho các thành viên trong nhà.
Bản vẽ mặt bằng tầng:



Đơn giá xây dựng mẫu nhà này thường được xác định theo phong cách kiến trúc công trình. Mức giá dự kiến hoàn thành khoảng từ 5 - 7 triệu/ m2.
3.6. Mẫu nhà 1 trệt 1 lầu mái tôn

Căn nhà 1 trệt 1 lầu mái tôn này được thiết kế theo kiến trúc tân cổ điển nhưng vẫn vô cùng trẻ trung, hiện đại. Sự kết hợp giữa tone màu trắng và nâu tạo nét đẹp sang trọng cho căn nhà. Cùng với thiết kế khoảng sân rộng rãi, bên hông là 1 chiếc xích đu trắng tạo nên sự trọn vẹn cho mẫu nhà đẹp này.
Ngôi nhà sử dụng hệ thống mái tôn hiện đại, chắc chắn, kết hợp hệ thống cửa kính cường lực giúp tăng sự thông thoáng và rộng rãi.
Khoảng giá xây dựng mẫu nhà này sẽ có giá dao động khoảng từ 3 đến 5 triệu/ m2.
3.7. Mẫu nhà 1 trệt 1 lầu mái thái

Mẫu nhà mái thái này được xây dựng với phong cách độc đáo với các kiến trúc hình vòm ở ban công lầu 1, hàng rào bảo vệ và khung mái hiên ở lầu 1. Gam màu trắng của tường nhà được kết hợp hài hòa với màu vân gỗ ở cổng chính giúp căn nhà trở nên nổi bật hơn. Sự kết hợp hoàn hảo giữa phong cách hiện đại và cổ điển của phương Tây giúp ngôi nhà trở nên vô cùng thu hút.
Đơn giá xây dựng mẫu nhà này giao động từ 3.2 đến 3.5 triệu/ m2 (nếu chủ nhà tự xây). Và giá thuê thầu xây dựng nhà trọn gói là từ 4,5 - 6 triệu/ m2.
3.8. Mẫu nhà 1 trệt 1 lầu hiện đại

Thiết kế mẫu nhà 1 trệt 1 lầu hiện đại với không gian sinh hoạt chung thoải mái ở phía trước hiên nhà. Kết hợp với đó là sân vườn thoáng rộng, ngôi nhà này rất thích hợp cho những gia đình thích sự hiện đại mà lại gần gũi với thiên nhiên.
Hình thức xây nhà này có mức chi phí trong khoảng từ 4,5 - 6 triệu/ m2 (đây là mức giá xây nhà trọn gói).
3.9. Mẫu nhà 1 trệt 1 lầu 2 mặt tiền

Nhà 1 trệt 1 lầu 2 mặt tiền này được thiết kế theo phong cách xây dựng tân cổ điển. Mặt tiền ngôi nhà được kết hợp từ các màu sắc hài hòa và đặc biệt thu hút nhờ thiết kế không gian mở hoàn toàn với hệ thống cửa kính hiện đại.
Đồng thời đây cũng là mẫu thiết kế nhà 2 mặt tiền đáng tham khảo cho những gia đình thích đưa cây xanh vào trong không gian sống vừa giúp che nắng vừa giúp thanh lọc không khí lại vừa tô điểm tạo sự nổi bật cho căn nhà.
Đơn giá của mẫu nhà này khoảng 3,5 triệu/ m2 - 5,5 triệu - 6,2 triệu/m2, tùy theo cách chủ nhà tự xây hoặc thuê gói xây nhà hoàn thiện.
3.10. Mẫu nhà 1 trệt 1 lầu sân thượng

Mẫu nhà này được thiết kế hiện đại, bắt mắt, ban công bố trí chậu hoa, cây cảnh tạo không khí tươi mới cho gia chủ. Tầng thượng được thiết kế độc đáo, đón ánh sáng lý tưởng kết hợp nhiều cây xanh, tạo không gian yên tĩnh, thoáng mát và trong lành cho các thành viên trong gia đình thư giãn.
Mức giá xây dựng của mẫu nhà này khoảng từ 3.5 - 5.5 triệu/ m2.
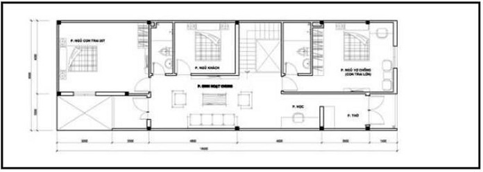
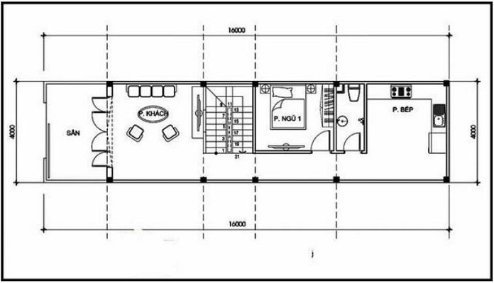
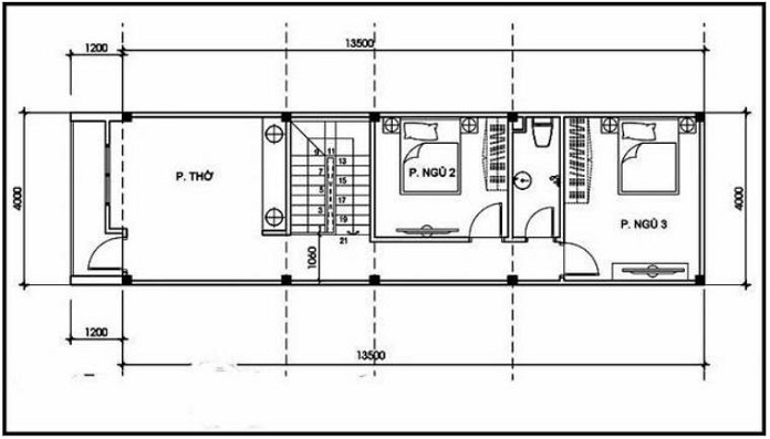
3.11. Mẫu nhà 1 trệt 1 lầu 3 phòng ngủ

Mẫu nhà phố 1 trệt 1 lầu 3 phòng ngủ này được lợp mái tôn hiện đại, hai bên có lá chắn nước. Với cách thiết kế theo kiểu nhà ống hiện đại phía trước là phần sân rộng rãi để được xe máy, kết hợp các tone màu trầm ấm, tạo nên sự sang trọng và tiện nghi cho ngôi nhà.
Thiết kế mặt bằng:


Mức giá thi công dự tính của mẫu nhà này khoảng từ 3.5 - 5 triệu/ m2.
4. Những lưu ý khi thiết kế nhà 1 trệt 1 lầu
Hiện nay có rất nhiều mẫu thiết kế nhà 1 trệt 1 lầu đẹp để lựa chọn. Tuy nhiên các bạn nên lưu ý một số điều cần biết khi quyết định xây nhà 1 trệt 1 lầu như sau:

Diện tích: Nếu diện tích đất xây nhỏ hẹp và sâu thì nên chọn xây nhà hình ống, hình hộp với các phòng xếp nối tiếp từ 3 - 4 phòng sẽ giúp tối ưu không gian sống nhất. Đối với nhà có diện tích đất rộng bề ngang thì có thể chọn kiểu thiết kế 3 gian song song với sảnh phía trước tạo sự đối xứng. Hoặc cũng có thể xây dựng nhà theo kiểu chữ L kết hợp thêm sân để tận dụng làm chỗ để xe.
Màu sắc: Nên chọn các màu sắc theo sở thích và phong thủy để xây nhà. Tuy nhiên, màu sắc ngôi nhà cần đảm bảo được sự hài hòa phù hợp với kiến trúc xây dựng.
Nội thất: Gia chủ nên bố trí nội thất ngôi nhà sao cho khoa học, hợp lý để giúp tạo không gian sống thoáng đãng, rộng rãi và tiện nghi nhất cho tất cả các thành viên trong gia đình.
Phong cách: Gia chủ có thể chọn thiết kế ngôi nhà của mình theo sở thích như kết hợp giữa cổ điển và hiện đại, thiết kế nhà cổ điển, kiểu nhà hiện đại,...
Qua bài viết này chúng tôi hy vọng sẽ giúp bạn có được thông tin hữu ích về nhà 1 trệt 1 lầu. Chúc bạn chọn được mẫu nhà 1 trệt 1 lầu để tiến hành thi công mái ấm phù hợp cho gia đình mình nhé!
| TỔNG HỢP NHÓM THIẾT KẾ | |