Top 4 mẫu nhà cấp 4 mái thái có gác lửng được ưa chuộng nhất
Nhà cấp 4 mái Thái có gác lửng là kiến trúc thiết kế đơn giản có mức độ phổ biến lớn từ thành thị đến nông thôn. Kiểu nhà này mang đến không gian tươi mới, đẹp mắt với mức chi phí đầu tư tiết kiệm. Vậy nếu bạn cũng đang có nhu cầu sở hữu cho mình tổ ấm lý tưởng thì đừng bỏ lỡ Top 4 mẫu nhà cấp 4 mái thái có gác lửng ưa chuộng dưới đây.
TỔNG QUAN NHÀ CẤP 4 MÁI THÁI
|
|
Có thể bạn quan tâm:
Đặc trưng của nhà cấp 4 gác lửng mái thái
Kiểu mái thái thường dùng cho những công trình nhà ở thấp tầng với tối đa là 1 tầng trên và 2 tầng trên. Tuy nhiên để nói đến mẫu nhà sử dụng loại mái phổ biến nhất thì có lẽ đó chính là nhà cấp 4 gác lửng.
Với đặc điểm chính là cao và dài, mái thái giúp những ngôi nhà cấp 4 trông không bị “lùn”, mang đến cảm giác rộng rãi, khang trang cho người nhìn khi đứng từ phía trực diện.

Thoạt nhìn, nhiều người cho rằng việc lợp mái thái cũng đơn giản như là mái ngói vậy. Nhưng thực tế, quá trình thi công là tương đối phức tạp và thường chỉ có những người thợ tay nghề cao mới có thể thao tác trơn tru và chính xác.
Đặc biệt, chất lượng mái thái phụ thuộc vào rất nhiều chi tiết nhỏ nên khi xây nhà cấp 4 gác lửng mái thái cần đặc biệt tỉ mỉ và cẩn thận trong khâu lợp mái. Điểm độc đáo nhất của mẫu nhà cấp 4 có gác lửng này chính là khoảng đua phần mái.
Phần mái bạn cũng có thể thiết kế thêm các ô ngói kính để lấy sáng cho phòng ngủ ở phần gác lửng bên trên. Tầng 1 thiết kế bao gồm phòng khách, phòng ăn và 1 phòng sinh hoạt chung. Với thiết kế như vậy chắc chắn bạn sẽ có một nhà cấp 4 gác lửng kiểu thái với không gian rộng rãi và có tính thẩm mỹ cao.
Ngoài ra, nếu tìm hiểu một chút, bạn sẽ thấy đường phào chỉ ở mái thái thường lớn gấp 3 hay gấp 4 so với các kiểu nhà thông thường. Do đó, yêu cầu chính xác và thi công của loại mái này cũng có phần phức tạp hơn rất nhiều.
Bên cạnh đó, chi phí để lợp mái thái cũng cao hơn một chút so với những mẫu nhà cấp 4 truyền thống khác. Dù vậy đây vẫn là xu hướng được nhiều người lựa chọn khi xây nhà cấp 4 hiện nay.
Mẫu nhà cấp 4 mái thái có gác lửng đẹp, được ưa chuộng
Bạn đang lên ý tưởng xây nhà cấp 4 mái thái có gác lửng? Bạn không biết nên thiết kế như thế nào cho đẹp? Vậy hãy tham khảo ngay Top 4 mẫu gợi ý để lên ý tưởng dễ hơn.
Nhà cấp 4 mái thái gác lửng 400 triệu
Mẫu nhà cấp 4 mái Thái có gác lửng đẹp ưa chuộng hiện nay là mẫu nhà 400 triệu thiết kế đầy hiện đại. Đây là mẫu nhà 1 tầng, 1 lửng với diện tích xây dựng 120m2 mặt tiền 5m. Sản phẩm gây ấn tượng bởi vẻ ngoài lung linh đến nội thất cùng không gian sống bên trong đầy thời thượng. Cụ thể:
- Phối cảnh mẫu nhà
Mẫu nhà cấp 4 mái Thái hiện đại này không sử dụng chi tiết trang trí hoa văn cầu kỳ. Thay vào đó kỹ sư thiết kế ứng dụng khối hình chắc chắn vào công trình mang đến sự vững vàng, mạnh mẽ.

Ngôi nhà sở hữu mảng tường dày dặn, trụ cột nhà hình vuông đầy chắc chắn. Toàn bộ phần trụ cột, chân tường đều được ốp đá nâu đen và tích hợp chống thấm, chống mốc chân tường. Hệ thống cửa sổ và ban công tầng lửng làm từ chất liệu kính trong. Do đó vẻ ngoài của nhà luôn tinh tế và giúp không gian bên trong lấy được nhiều ánh sáng.
Đường phào chỉ mẫu nhà cấp 4 mái thái gác lửng đẹp này có phần đơn giản nhưng giúp phân chia mảng tường hiệu quả. Trước cửa chính còn bố trí thêm sảnh trước kết hợp với mái Thái lệch tầng cách điệu. Điều này mang đến cho ngôi nhà cảm giác như những ngôi biệt thự Pháp cổ sang trọng.
- Bản vẽ mặt bằng
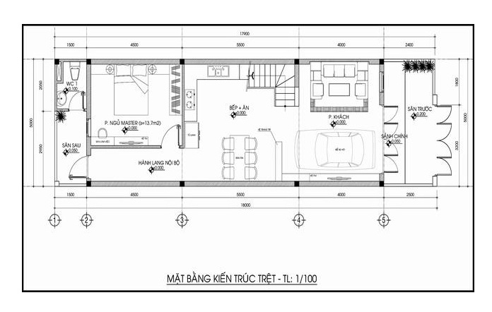
Nhà cấp 4 gác lửng mái thái ăn theo diện tích chiều rộng 120m2. Nhà được thiết kế theo phong cách hiện đại đầy đủ công năng sinh hoạt cho gia chủ. Mặt bằng tầng 1 bố trí phòng khách, bếp, phòng ăn, 1 phòng ngủ và 1 WC.

Mặt bằng tầng lửng tích hợp thêm 1 phòng ngủ rộng 9m2 cùng 1 phòng ngủ 13m2. Đi kèm với đó là 1 phòng sinh hoạt chung, 1 phòng WC chung.

- Công năng sử dụng
Từ sảnh chính bước vào sẽ là không gian phòng khách rộng 22m2 thiết kế hiện đại. Nơi đây trang bị 1 bộ bàn ghế sofa vừa cùng 1 kệ tivi sắp xếp gọn gàng, ngăn nắp. Phòng ngủ tầng 1 bố trí lùi vào 1 bên nhà, phòng bếp gần bàn ăn trang bị đầy đủ thiết bị cần thiết. Để tiết kiệm diện tích WC được đặt phía dưới thang lên gác lửng.
Bước lên tầng 2 phần đại sảnh sẽ mở ra 2 lối phòng ngủ khác nhau. Ngay cạnh là khu sinh hoạt chung nhỏ của gia đình. Nơi đây bố trí thêm 1 phòng WC chung với diện tích 5M2.
Nhà cấp 4 gác lửng mái thái 5x20
Nhà cấp 4 mái Thái có gác lửng 5x20m nhìn từ xa khối kiến trúc mang đường nét khỏe khoắn, bề thế. Hình khối cao thoáng với phần sân trước thiết kế tối màu. Phần chân móng nâng cao sử dụng sơn tối giảm thiểu hiện tượng rêu mốc. Phía dưới chân tường còn ốp đá tự nhiên kết hợp kiến trúc chữ L giật cấp tận dụng góc vuông làm không gian gara.

Bậc tam cấp nhà thiết kế cao. Hệ thống cửa làm từ gỗ thiết kế khối hình vòm cung. Phần mái giật cấp kết hợp họa tiết đường gờ chạy ngang tô điểm phối cảnh ngôi nhà đẹp mắt. Màu sắc nhà còn là sự đan xen giữa gam trắng, nâu sáng cùng nâu đen xám.
Về công năng gồm phòng khách, bếp, 3 phòng ngủ cùng phòng thờ và WC. Trong đó thông qua bản vẽ tầng 1 có thể thấy Gara ô tô được thiết kế phía ngoài. Từ sảnh chính đi vào là khu vực phòng khách. Phòng ăn cùng bếp bố trí liền kề cùng phòng khách.

Phần cầu thang thông lên gác lửng xây dựng ngay trung tâm ngôi nhà thiết kế tạo góc giao. Trong cùng mặt sàn là phòng ngủ bố mẹ với hành lang di chuyển vuông góc bàn ăn. Nhà WC chung bố trí trong cùng mang đến sự thuận tiện.

Lên tầng lửng thiết kế phòng thờ cạnh sảnh thang lửng. Hai phòng ngủ bố trí phía trong tiếp giáp nhau. Nhà WC được đặt góc cuối hành lang gần 2 phòng ngủ.
Nhà cấp 4 mái thái có gác lửng 4 phòng ngủ
Nhà đẹp cấp 4 mái thái gác lửng 4 phòng ngủ được thiết kế với ngói nâu đen. Màu sắc ngoại thất lấy gam màu nâu tối làm chủ đạo. Thiết kế hàng rào sắt cho tới cửa cổng. Kiến trúc mái theo dạng khối chữ A giật cấp đem lại sự đồng bộ và hoàn mỹ.

Sân trước thiết kế rộng lát gạch xám điểm xuyết bồn hoa tiểu cảnh thu hút. Phần sảnh chính thoáng với bậc tam cấp cao ốp đá tự nhiên sắc nâu, vàng sáng. Trụ cột chịu lực kết cấu giật cấp phía trên. Khuôn cửa chính làm từ gỗ tự nhiên cùng mảng tường ốp đá màu nâu xám tạo hiệu ứng thu hút.

Theo như chia sẻ của Kiến trúc sư mẫu nhà cấp 4 mái Thái có gác lửng có kinh phí đầu tư gồm 600 triệu đồng. Công năng tầng 1 từ sảnh chính vào sẽ là khu phòng khách rộng rãi ngay cạnh cầu thang tầng lửng.
Phía trong là phòng bếp cùng bàn ăn. Phòng vệ sinh chung thiết kế ở phía trong cùng cuối góc nhà. Mẫu nhà thuộc khối chữ L nên phần bên kia sẽ bố trí 2 phòng ngủ liền kề với nhau.

Tầng 2 thiết kế gồm 2 phòng ngủ. Ngay kh vực sảnh thang thông tầng lửng bố trí phòng sinh hoạt chung. Phòng thờ bố trí ngay cạnh bên phòng sinh hoạt chung. Cuối góc tầng lửng là nhà vệ sinh.

Nhà cấp 4 gác lửng mái thái 3 phòng ngủ
Mẫu nhà cấp 4 mái Thái có gác lửng nhìn từ xa với đường nét kiên cố, khá vững chắc. Hình khối và đường nét vừa đan xen sự nhẹ nhàng vừa có nét mạnh mẽ đầy cuốn hút. Mặt tiền xử lý thoáng, tinh tế hiện đại.

Kiến trúc mái Thái khối hình chữ A trang trí khá cầu kỳ. Đường gờ thẳng chạy ngang mặt tiền cùng khối hộp ở phông phụ tạm cảm giác an toàn.
Khối mái giật cấp thiết kế đối xứng cùng màu sắc bắt mắt mang đến cảm giác cuốn hút. Hệ thống cửa nhựa lõi thép lớn đảm bảo ánh sáng cũng như sự thông thoáng.

Công năng nhà cấp 4 mái thái gác lửng 3 phòng ngủ ở tầng 1 bố trí khá đơn giản. Công năng chính phòng khách được đặt ngay cửa chính. Phía trong là khu phòng ăn. Bếp được xây dựng giáp và ngăn cách với phòng khách qua vách thạch cao. Cầu thang bố trí ở góc giữa kè nhà vệ sinh cạnh cầu thang. Một phòng ngủ tích hợp khép kín chạy song song hành lang.

Bước lên tầng lửng mặt bằng công năng nơi đây chủ yếu là công năng riêng. Theo đó từ cầu thang lên ngay cạnh sẽ là khu phòng sinh hoạt nhỏ. Đối diện là 2 phòng ngủ sẽ xây dựng giáp với nhau. Diện tích phòng rộng rãi. Phòng WC sẽ xây cạnh phòng sinh hoạt chung tạo sự thuận tiện.
Vì sao nhà cấp 4 gác lửng lợp mái thái được ưa chuộng hiện nay?
Xét về giá thành hay độ bền, nhà cấp 4 gác lửng mái thái vẫn có những điểm còn hạn chế hơn so với các loại mái truyền thống.
Vậy nhưng đây vẫn là cái tên được ưa chuộng và sử dụng trong nhiều công trình vì chúng có khả năng đem lại những tính năng mà không loại mái nào làm được. Vậy bạn có biết đâu là những yếu tố tạo nên sức hút mãnh liệt của nhà cấp 4 gác lửng mái thái đẹp hiện nay hay không?

- Yếu tố phong thủy
Từ trước đến nay, những mẫu nhà cấp 4 luôn được đánh giá là có tính phong thuỷ mạnh nên khi xây dựng, chủ nhà thường chú ý rất nhiều đến tính hoà hợp, đảm bảo từng hướng nhìn, bộ phận thiết kế trong nhà đều đem lại may mắn. Đó là lý do vì sao những mẫu nhà cấp 4 gác lửng mái thái lại trở thành lựa chọn hàng đầu của nhiều gia đình hiện nay.
Các chuyên gia phong thuỷ từng nhận định rằng, đặc điểm lớn nhất của mái thái chính là chúng có thiết kế mặt dốc cao nên có khả năng chống lại các ám khí không tốt.
Những tấm mái thái dài là dốc thẳng giống như một tấm khiên vững chắc giúp ngôi nhà không bị khí xấu tấn công hay tích tụ hung khí, đem lại điều không lành cho gia đình. Việc cản mọi khí xấu của mái thái khiến tài lộc, may mắn dễ vào nhà hơn.
Thực tế, vấn đề phong thuỷ không phải là điều mà tất cả mọi người đều tin tưởng. Tuy nhiên bất kỳ ai cũng đều xem ngày và hướng xây trước khi khởi công với suy nghĩ “phòng còn hơn không”. Vậy nên nếu quan tâm đến vấn đề phong thuỷ thì những mẫu nhà cấp 4 gác lửng mái thái đẹp có lẽ là sự lựa chọn hoàn hảo dành cho bạn.
- Đạt yếu tố về tính thẩm mỹ

Xét về khía cạnh thẩm mỹ thì mái thái luôn được người tiêu dùng lẫn giới chuyên gia đánh giá cao. Bởi lẽ, các mái thái hiện nay đều dùng ngói màu và có kiểu dáng khá đa dạng như ngói sóng hoặc ngói thẳng.
Do đó mà tùy vào sở thích, mong muốn xây dựng một ngôi nhà cấp 4 gác lửng mái thái đơn giản, hiện đại hay cầu kỳ, nghệ thuật thì bạn có thể hoàn toàn lựa một loại ngói phù hợp.
Đặc biệt, vì ngói có nhiều màu sắc nên bạn có thể dựa vào tổng thể ngôi nhà để chọn một màu ngói sao cho phù hợp nhất. Hoặc dựa vào mệnh tuổi để chọn sắc ngói phù hợp với phong thuỷ. Có thể nói, sự đa dạng này giúp mái thái mang lại vẻ đẹp chủ đạo góp phần tạo nên sức cuốn hút, tinh tế và đẹp mắt cho ngôi nhà của mỗi gia đình.
- Mang đến sự tiện lợi tối đa
Cùng là nhà cấp 4 nhưng những mẫu nhà lợp ngói thái vẫn được ưa chuộng hơn là bởi sự tiện lợi mà chúng mang lại. Với thiết kế mái cao, rộng, khoảng không gian phía trên bên trong ngôi nhà thường rất trống.
Bạn có thể tận dụng vị trí dư thừa này để xây thêm một gác lửng, tạo thêm không gian sinh hoạt cho ngôi nhà. Chẳng hạn với nhà cấp 4 mái thái 5x20, tầng gác lửng lớn thì bạn có thể xây thêm hai phòng ngủ nhỏ xinh nữa đấy.
Việc xây nhà cấp 4 gác lửng mái thái rất thích hợp với những gia đình nhỏ có 1 hoặc 2 con. Lựa chọn kiểu nhà này sẽ giúp bạn đảm bảo đủ không gian thoải mái, riêng tư cho từng thành viên trong nhà không tốn kém quá nhiều chi phí.
Đặc biệt, có rất nhiều cách decor nhà tầng lửng theo nhiều phong cách khác nhau hiện nay mà bạn có thể tham khảo để mang lại một vẻ đẹp độc đáo, riêng biệt cho mái ấm của mình nhé.
Nhà cấp 4 gác lửng lợp mái thái chính là lựa chọn hoàn hảo đối với những gia đình có diện tích đất hẹp và điều kiện kinh tế không quá cao. Không chỉ đáp ứng tốt nhu cầu sinh sống, kinh tế của gia đình mà tính thẩm mỹ chúng đem lại cũng không thua kém bất kỳ một ngôi nhà cao tầng lộng lẫy nào hiện nay đâu nhé!
- Tiết kiệm chi phí khi thi công và xây dựng

Với những ngôi nhà tầng, thời gian thi công diễn ra tương đối dài và phát sinh thêm nhiều chi phí khác. Trong khi đó, với nhu cầu thêm phòng, bạn chỉ cần tạo thêm một tầng lửng trong ngôi nhà cấp 4 mái thái là được.
Ước tính chi phí tạo thêm một tầng lửng có đủ hai phòng ngủ, nhà vệ sinh giống như tầng hai của một ngôi nhà hoàn chỉnh là rẻ hơn rất nhiều. Vì thế bạn sẽ tiết kiệm được kha khá công sức và tiền bạc khi chọn mẫu nhà này đấy.
Có thể nói, nhà cấp 4 gác lửng mái thái chính là lựa chọn hoàn hảo nhất đối với nhiều gia đình nhỏ có hai con hiện nay. Vậy nhưng bên cạnh những ưu điểm vượt trội thì những mẫu nhà lợp mái thái này vẫn còn 1 số điểm hạn chế nhất định. Tuy nhiên chúng cũng không ảnh hưởng quá lớn đến chất lượng cuộc sống trong gia đình.
Lưu ý khi xây nhà cấp 4 gác lửng mái thái
Tưởng như đơn giản nhưng cũng có rất nhiều điều cần quan tâm khi bạn tìm hiểu và xây nhà cấp 4 gác lửng mái thái. Vì cấu trúc xây dựng tương đối phức tạp nên bên cạnh chi phí bạn cũng cần quan tâm đến nhiều yếu tố khác như đơn vị xây dựng, tính phong thuỷ hay nhu cầu sử dụng của gia đình. Cụ thể:
- Kinh phí
Mặc dù nếu so với nhà cấp 4 truyền thống thì nhà mái thái sẽ có phần cao hơn một chút nhưng nhìn chung chúng phù hợp với điều kiện kinh tế của những gia đình tầm trung.
Tuỳ vào diện tích ngôi nhà, vật liệu sử dụng, số lượng phòng, độ rộng dài của mái mà kinh phí cũng sẽ có sự khác nhau. Vậy nên sau khi xác định kiểu kiến trúc mà mình muốn , bạn có thể tìm hiểu sơ qua về mặt bằng giá cơ bản để có thể chủ động trong việc chi trả nhé.
- Công ty xây dựng hợp tác
Không khó để bạn tìm kiếm một công ty xây dựng đảm nhận phần xây thô cũng như mua các nguyên vật liệu cho ngôi nhà của bạn. Chính vì nắm vai trò quan trọng trong công trình xây dựng nên khi tìm kiếm đơn vị hợp tác, bạn cần phải tra cứu thông tin thật rõ ràng và chính xác nhất.
Thực tế, đã có rất nhiều trường hợp các công ty kém uy tín lợi dụng sự thiếu hiểu biết của khách hàng để độn giá thi công lên rất nhiều đấy.

- Phong thuỷ
Tính phong thuỷ luôn được nhiều người quan tâm trước khi khởi công xây nhà. Đặc biệt, nhiều người cho rằng tính phong thuỷ khi xây nhà cấp 4 rất mạnh, vì thế cần phải tính toán kỹ lưỡng thời gian, ngày giờ khởi công.
Không chỉ vậy, tùy vào mệnh và tuổi của gia chủ mà phải chọn hướng, kiểu nhà sao cho hài hoà, không xung khắc, tránh mang đến vận xui, hoạn nạn đến cho gia đình.
Mái thái được lợp cho nhà cấp 4 được cho là có tính phong thuỷ mạnh nhất. Vì thế, với sự đa dạng về màu sắc và kiểu dáng, bạn có thể tham khảo ý kiến của kiến trúc sư hoặc dựa vào mệnh tuổi của mình để chọn màu sắc, kiểu mái phù hợp nhất.
Mặc dù không phải lúc nào người ta cũng tin vào phong thuỷ nhưng đây lại là truyền thống quen thuộc đã có từ lâu nên bất cứ xây nhà cũng đều chú ý đến vấn đề này.
- Nhu cầu sử dụng
Thông thường, những mẫu nhà cấp 4 gác lửng mái thái thường dùng cho những gia đình nhỏ như cặp vợ chồng mới cưới. Tuy nhiên, khi có thêm 1 hay 2 đứa nhỏ thì bạn có thể xây một tầng lửng để tạo thành hai phòng ngủ nhỏ xinh.
Do đó, dựa vào nhu cầu sử dụng mà bạn có thể biến hoá ngôi nhà của mình trở nên phù hợp hơn mà không quá tốn kém. Dù vậy, nếu gia đình bạn có nhiều thế hệ sinh sống cùng lúc thì đây lại không phải một ngôi nhà phù hợp.
Nhà cấp 4 mái tôn thay thế cho mái thái được không?

Nhiều người khi tìm hiểu về nhà cấp 4 mái thái đều cho rằng việc thiết kế mái tương đối phức tạp và có độ bền không quá cao thì liệu có thể thay thế tôn được không?
Thực tế, tôn cũng có nhiều màu sắc và kiểu dáng, đặc biệt thêm thiết kế dạng tấm sẽ khiến việc ốp mái hoàn thành nhanh chóng hơn. Thoạt nghe thì đây hẳn là điều có lý. Vậy nhưng xét về thực tế thì không đúng chút nào đâu nhé.
Nhà cấp 4 mái tôn hiện có rất nhiều nhưng nếu để ý, bạn sẽ thấy mái tôn thường thấp và thoải. Nguyên do là bởi chúng không có độ ma sát cao, ở vị trí dốc 30 độ so với mặt thẳng đứng như mái thái sẽ ảnh hưởng đến độ chắc chắn và tính bền lâu, bảo vệ mái nhà sau này.
Tìm hiểu kỹ một chút sẽ thấy sự phức tạp khi lắp mái thái còn ở cả khâu dựng khung và nhiều yếu tố khác. Vậy nên việc thay thế gần như là không thể.
Có thể bạn quan tâm:
Những mẫu nhà cấp 4 gác lửng mái thái hiện đang trở thành lựa chọn tuyệt vời của mỗi gia đình hiện nay khi chúng có thể đáp ứng tốt mọi yêu cầu về kinh tế lẫn không gian sinh hoạt. Sau khi tìm hiểu về những mẫu nhà cấp 4 cũng như đặc tính của mái thái liệu có khiến bạn muốn sở hữu ngay cho mình một ngôi nhà như vậy không nào? Hãy khám phá ngay nhà cấp 4 trong chuyên mục Kiến Trúc của Meey Land chúng tôi bạn nhé!
THAM KHẢO CÁC MẪU NHÀ CẤP 4 HOT NHẤT HIỆN NAY
|
|
|
|
|
|
|
|
|