TOP 10+ mẫu nhà ống 2 tầng mái thái mặt tiền 5m hiện đại
Nhà ống 2 tầng mái thái mặt tiền 5m là đối tượng ưu tiên mà các gia đình hiện đại đang hướng đến. Mẫu mã đẹp mắt, tối ưu được công năng sử dụng là những ưu điểm chính của loại nhà này. Dưới đây bạn đọc có thể tham khảo một số mẫu nhà ống 2 tầng mái thái mặt tiền 5m đẹp, hiện đại hiện nay nhé.
[gallery td_select_gallery_slide="slide" size="full" columns="1" ids="140905,140908,140909,140910,140922,140914,141007,140856,140860,140863,140874,140894,140892,140888,140886,140899,140921,140855"]
1. Đặc điểm mẫu nhà ống 2 tầng mái Thái mặt tiền 5m
Nhà ống 2 tầng mái Thái mặt tiền 5m được xây dựng trên những thửa đất dạng hình chữ nhật. Chính là trên các khu đất hẹp về mặt tiền nhưng mở rộng về chiều sâu. Các căn nhà thường xây san sát nhau nên chúng phải được thiết kế kiểu hình chữ nhật hướng lên trên để hạn chế tối đa các chi tiết va chạm với nhà bên cạnh.

Với thiết kế dốc xuống của phần mái, giúp cho việc thoát nước trở nên dễ dàng hơn. Loại bỏ tình trạng ứ đọng nước và ẩm thấp. Vì vậy phần mái Thái chính là điểm nhấn của các ngôi nhà. Mái Thái sẽ được thiết kế cầu kỳ, tinh tế, mang đến sự nổi bật và trang nhã.
Nếu các bạn có ấn tượng tốt và đánh giá cáo những đặc điểm của mẫu thiết kế này, thì các bạn hãy tham khảo thêm các mẫu thiết kế nhà độc đáo khác được cập nhật nhanh nhất ngay tại mục nhà đẹp của chúng tôi nhé.
2. Bản vẽ mẫu nhà ống 2 tầng mái Thái mặt tiền 5m
Những thiết kế nhà mái Thái 2 tầng đẹp dưới đây với phương án mặt tiền tinh tế, bản vẽ đầy đủ chi tiết, nội thất màu sắc sinh động và chi phí xây dựng giá rẻ. Với mặt tiền 5m mẫu nhà ống 2 tầng đơn giản đẹp thường được đánh giá cao bởi nó thể hiện rất rõ tính thẩm mỹ kết hợp với nét sang trọng và vô cùng hiện đại.

Ngôi nhà ống 2 tầng trên đây thiết kế mái Thái giật cấp hay còn gọi theo cách dân gian là “mái mẹ bồng con”. Vẫn với mặt tiền 5m nhưng những nhà có nhiều mái phụ trở nên 'bề thế' hơn. Tuy nhiên đây là phần mái Thái giả nên sẽ giúp gia chủ tiết kiệm chi phí nhưng vẫn có nét đẹp của phần mái Thái.



3. Tham khảo mẫu nhà ống 2 tầng mái Thái mặt tiền 5m đẹp, hiện đại
Với lợi thế phần mặt tiền 5m, các chủ đầu tư có thể thoải mái hơn trong việc lựa chọn các mẫu thiết kế. Rất nhiều bản mẫu nhà ống 2 tầng mặt tiền 5m mái Thái đẹp và phong phú đang chờ đợi được các gia chủ tương lai lựa chọn.
3.1 Mẫu nhà ống 2 tầng mái Thái đẹp mặt tiền 5m 1 tum
Phối cảnh mặt tiền
Căn nhà với diện tích lên tới gần 100m2, mang cách thiết kế đặc trưng của Pháp. Những ngôi nhà xây dựng theo phong cách tân cổ điển đòi hỏi sự tỉ mỉ về các chi tiết và thi công. Đa phần các mẫu nhà ống tân cổ điển sẽ có giá thành cao hơn.

Tổng quan căn nhà ống 2 tầng mặt tiền 5m có tông màu chủ đạo là trắng tô điểm bằng cánh cửa lớn làm từ gỗ nâu sẽ cho người nhìn cảm giác không bị nhàm chán. Tầng mái Thái đặc trưng 2 tầng tông xám giúp căn nhà trở nên trang nhã hơn.
Căn nhà vẫn được xây dựng 2 tầng phong cách tân cổ điển kèm 1 tầng tum. Tuy không quá đồ sộ nhưng thiết kế này như một căn biệt thự nhỏ lộng lẫy. Các đặc trưng mẫu nhà kiểu Pháp như mái vòm, lan can ban công, đèn trần đều được suy tính tỉ mỉ cho căn nhà.
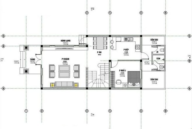
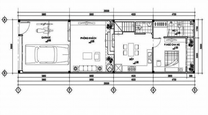
Bản vẽ công năng

Mẫu nhà ống 02 tầng mái Thái kiểu Pháp này được bố trí công năng rất đầy đủ tiện ích cần có. Tầng 1 bao gồm 1 phòng khách, 1 phòng bếp, 1 phòng ngủ và 1 vệ sinh chung. Cầu thang được bố trí chủ ý để ngăn giữa không gian phòng khách và phòng bếp. Phòng ngủ được có vệ sinh khép kín đảm bảo được tính riêng tư cho người dùng.
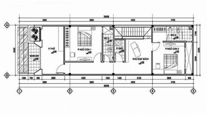
Tầng 2

Tầng 2 bố trí 3 phòng ngủ, 1 nhà vệ sinh chung, 1 phòng sinh hoạt và 1 phòng thờ. Các phòng sử dụng hệ thống cửa gỗ rất sang trọng. Ban công sử dụng cửa kính đảm bảo việc đón ánh sáng tự nhiên cho ngôi nhà.

Đặc biệt hơn mẫu nhà ống 2 tầng mặt tiền 5m mái Thái được xây dựng thêm 1 tầng tum. Không gian tầng tum đã tăng thêm diện tích sử dụng cho căn nhà. Gia chủ đã tận dụng làm sân phơi thoáng và nơi chứa đồ cho gia đình.
3.2. Mẫu nhà ống 2 tầng mặt tiền 5m mái Thái lệch tầng đẹp
Nhà lệch tầng là một mẫu nhà trong thiết kế xây dựng nhà ở và đang dần được biết tới. Nhà sẽ có mặt sàn lệch nhau giữa các tầng, các tầng có sự chênh lệch nhau về độ cao và cũng nằm trên một mặt phẳng.
Bối cảnh mặt bằng

Phần tường mặt tiền và sàn bậc tam cấp của mẫu nhà này được ốp đá vân xám rất nịnh mắt. Căn nhà được bố trí cửa sổ, cửa chính rất khoa học giúp cho không gian sống trở nên thoáng mát, rộng rãi hơn.
Bản vẽ công năng

Nhà lệch tầng cũng được bố trí công năng sử dụng như những căn nhà khác. Tầng 1 có khoảng sân trước rộng rãi có thể để xe hoặc thành sân chơi cho các thành viên. Phòng khách chung không gian với phòng bếp sẽ làm tăng diện tích sử dụng cho căn nhà. 1 phòng ngủ nhỏ và 1 nhà vệ sinh chung được bố trí cuối nhà.
Tầng 2 tuy có thể thiết kế 3 phòng ngủ nhưng gia chủ chỉ làm 2 phòng ngủ và để một phần diện tích rộng làm phòng thờ. Từ phòng thờ có thể ra lan can giúp cho nơi thờ cúng trở nên sáng và thoáng đãng hơn. Tầng 2 cũng có vệ sinh chung góc cuối nhà đủ tiện ích để các thành viên sử dụng.
3.3. Mẫu nhà ống 2 tầng mái Thái mặt tiền 5m tân cổ điển
Bối cảnh mặt bằng

Đối với mẫu thiết kế này lại theo phong cách tân cổ điển sang trọng. Là ngôi nhà mái Thái mang đậm màu sắc truyền thống có mặt tiền 5m. Họa tiết cầu kỳ là điểm đặc biệt của căn nhà. Đi kèm với đó là kinh phí cho việc trang trí sẽ tốn kém hơn.
Bản vẽ công năng

Nhà ống 2 tầng mái Thái mặt tiền 5m có lợi thế về chiều rộng nên sẽ dễ dàng sáng tạo hơn cho việc bố trí công năng sử dụng.
Với các chức năng cơ bản, tầng 1 bao gồm sân để xe, phòng khách, nhà bếp, 1 phòng ngủ và nhà vệ sinh chung. Tầng 2 vì chỉ có nhà vệ sinh chung nên có thêm diện tích bố trí được 3 phòng ngủ. Các phòng đều có diện tích rộng rãi, căn nhà còn có giếng trời và ban công đón nắng.
3.4 Mẫu nhà ống 2 mặt tiền 5m mái Thái có 2 mặt tiền
Bối cảnh mặt bằng
Được sở hữu một thửa đất với 2 hoặc nhiều mặt tiền luôn là niềm ao ước của các gia đình. Đối với những căn 2 mặt tiền gia chủ có thể thỏa sức sáng tạo về không gian cũng như cảnh quan.

Căn nhà có thiết kế rất mở với nhiều ô cửa sổ cả 2 mặt tiền. Với 2 tông màu chủ đạo trắng ngà và xám giúp ngôi nhà trở nên thanh thoát hơn. Trụ vuông và trụ tròn kết hợp đỡ phần mái Thái mặt tiền, với chất liệu đá vân trắng tạo nên sự sang trọng nhất định. Hệ thống cửa đều từ chất liệu gỗ và kính giúp căn nhà trông ấm cúng mà lại thoáng mát.
Bản vẽ công năng
Vì là nhà ống 2 tầng mái Thái có 2 mặt tiền nên gia chủ có thể linh hoạt bố trí 1 hoặc 2 cửa ra vào. Cửa sổ cũng được bố trí quanh 2 mặt tiền đón tối đa ánh sáng và khí trời.
Tầng 1 được thiết kế đầy đủ các phòng: sân để xe, phòng khách, bếp, phòng ngủ, nhà vệ sinh, lô gia.

Tầng 2 gồm 2 phòng ngủ với vệ sinh khép kín, ngoài ra còn có phòng thờ, khu đọc sách và 1 phòng giặt nhỏ. Có thể thấy gia chủ đã sử dụng tối đa diện tích trống để phục vụ nhu cầu sinh hoạt gia đình.

Không gian trong nhà sẽ trở nên rộng và thông thoáng nhờ lợi thế 2 mặt tiền. Chắc chắn gia đình nào cũng thấy thoải mái hơn khi sống trong căn nhà như vậy.
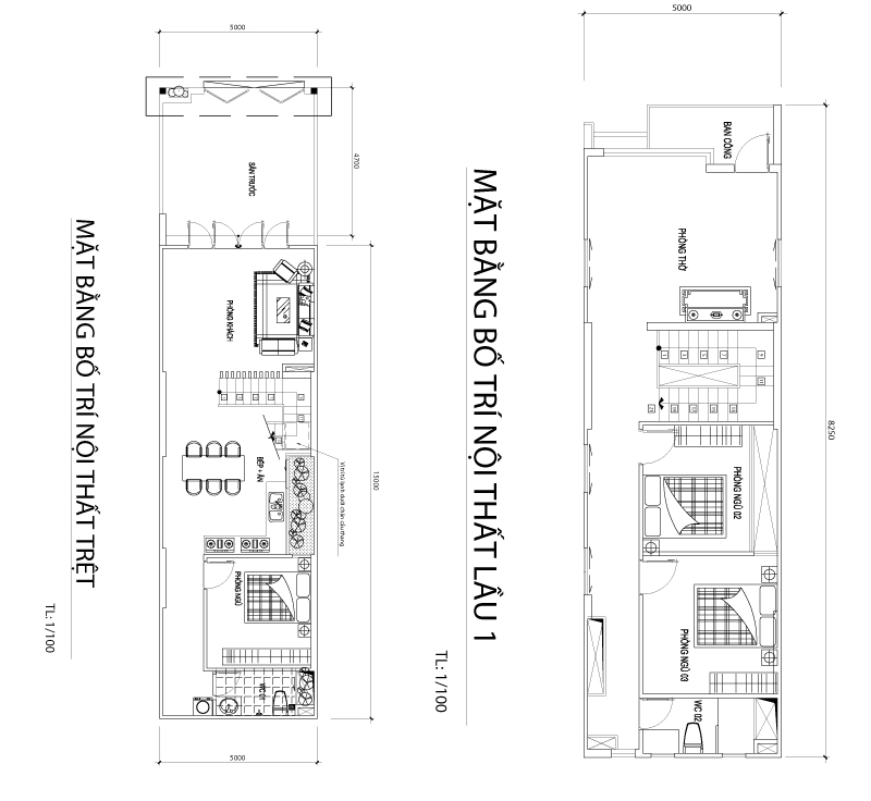
3.5. Mẫu nhà ống 2 tầng mái Thái mặt tiền 5m có gác lửng
Phối cảnh mặt tiền

Một mẫu nhà mang hơi hướng tân cổ điển với các phần đặc trưng như cột trụ, mái vòm, lan can sắt sắt được bố trí khéo léo. Phần mái Thái nổi bật được thiết kế dạng kép nâng đỡ bởi 2 cột trụ tròn vân giả đá. Mặt tiền 2 tầng đều ốp gạch với mẫu mã và màu sắc khác nhau rất bắt mắt.
Với mặt tiền rộng 5m, kiến trúc sư đã xây dựng được bản thiết kế rất phù hợp với diện tích đất này. Mẫu nhà ống đẹp 2 tầng mái Thái còn được thiết kế 1 tầng lửng giữa nhà.
Công năng đơn giản

Tầng 1 có khoảng sân để xe hoặc trồng thêm cây cảnh, phơi đồ. Phòng khách và bếp ăn chung không gian tạo cảm giác rộng rãi hơn. Được bố trí nội thất rất cơ bản nhưng đầy đủ tiện nghi. Nhà vệ sinh cạnh cầu thang nằm ở giữa nhà. Khoảng giếng trời phía sau bếp giúp cho căn nhà được thông thoáng hơn.

Thiết kế tầng lửng đã giúp gia đình tăng thêm diện tích sử dụng và tiết kiệm chi phí hơn. Không gian này được tận dụng làm thêm 1 căn phòng nhỏ và nhà vệ sinh.


Tầng 2 bố trí 2 phòng ngủ chính sử dụng nhà vệ sinh khép kín. Phòng ngủ master có ban công hướng về mặt tiền ngôi nhà.
Diện tích nhà ở vừa phải với 2 tầng chính và 1 lửng cùng phương án bố trí khéo léo. Gia đình sẽ không cảm thấy bí bách, chật chội có thể thoải mái sử dụng.
3.6. Mẫu nhà ống 2 tầng mặt tiền 5m mái Thái có 2 phòng ngủ
Bối cảnh mặt tiền
Vẻ ngoài căn nhà với những đường nét cầu kỳ, mang hơi thở tân cổ điển, nhưng được tiết chế nhẹ nhàng, tinh tế. Mặt tiền được tô bằng gam hồng tím nhã nhặn cùng những họa tiết sang trọng. Với bề ngoài tân cổ điển nhưng bên trong lại rất hiện đại cùng hòa quyện tạo ra sự trang nhã cho cả căn nhà.

Công năng sử dụng

Phòng khách được ngăn cách với khu bếp bằng vách ngăn cách điệu rất tiện dụng. Vì chỉ bố trí 2 phòng nên không gia không hề tạo cảm giác bưng bít, tù túng.

Tầng 2 chỉ gồm 2 phòng ngủ cùng nhà vệ sinh chung nhưng vẫn đáp ứng đầy đủ nhu cầu sử dụng của gia đình. Tuy diện tích nhà nhỏ nhưng vẫn được thiết kế cửa sổ và ban công rộng đủ cho không khí tự nhiên lưu thông vào nhà.
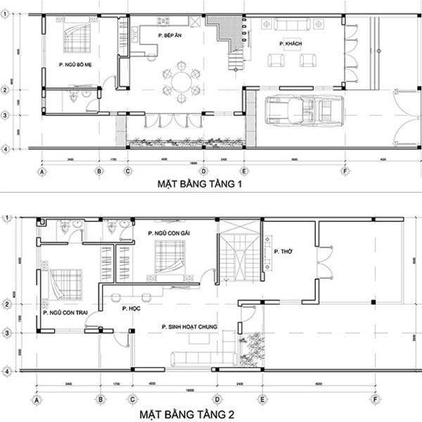
3.7. Mẫu nhà ống 2 tầng mái Thái mặt tiền 5m có 3 phòng ngủ
Bối cảnh mặt tiền
Màu sắc tổng thể của mẫu nhà ống 2 tầng mặt tiền 5m mái Thái này có sự đồng nhất và hài hoà. Với tông màu sơn trung tính kết hợp giữa xám sáng cùng với màu trắng của hệ thống cửa và mái Thái màu nâu nhạt. Hàng rào sắt to bản cũng là một trong những điểm nhấn của căn nhà.

Công năng sử dụng
Một mẫu thiết kế mặt bằng công năng cho mẫu nhà ống đẹp 2 tầng mái Thái đầy đủ tiện nghi với giá thành rẻ.

Mặt sân bên ngoài là khu để xe, từ cổng chính đi vào là khu vực phòng khách tiếp nối là gian bếp. Phía cuối nhà bố trí 1 phòng ngủ và 1 nhà vệ sinh chung tiện dụng.

Mặt bằng tầng 2 được thiết kế với rất nhiều công năng sử dụng. 2 gian phòng ngủ đều có nhà vệ sinh khép kín, bên ngoài là khu đọc sách và một phòng giặt nhỏ. Phòng thờ được bố trí về phía mặt tiền có ban công thông thoáng.
3.8. Nhà ống 2 tầng mái Thái mặt tiền 5m 4 phòng ngủ
Bối cảnh mặt bằng
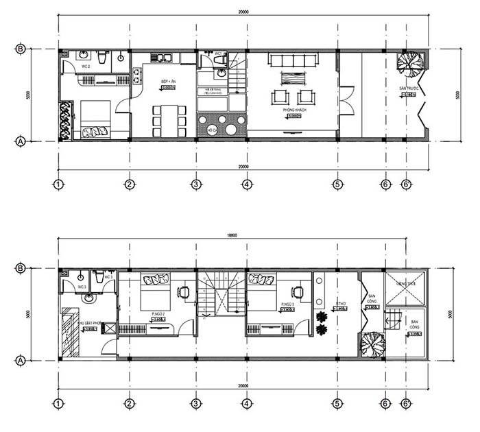
Nhà ống đẹp 2 tầng mái Thái với diện tích 5x20m có 4 phòng ngủ rất phù hợp cho những gia đình đông thành viên.

Có thể thấy ngay mặt trước là ban công rất rộng sử dụng hệ thức cột vuông, trên mỗi cột có đèn trang trí giúp ngôi nhà trông nổi bật hơn về đêm. Điểm xuyết trên gam màu trắng chủ đạo là màu nâu gỗ của cổng vào và lan can. Hệ thống mái Thái giúp cho việc thoát nước mưa trở nên dễ dàng hơn.
Công năng sử dụng
Với gia đình đông người đòi hỏi 1 không gian sống có đủ tiện ích mà vẫn phải thoáng đãng. Gia chủ đã bố trí khu vực để ô tô, phòng khách, nhà bếp cùng một không gian, tiết kiệm rất nhiều diện tích. Nhà vệ sinh và phòng ngủ tầng 1 cũng đủ rộng rãi để sử dụng.
Tầng 2 có 2 phòng ngủ chính với nhà vệ sinh khép kín. Phòng ngủ nhỏ được xây dựng thêm để phục vụ nhu cầu của gia đình.
3.9. Mẫu nhà ống 2 tầng mái Thái 5x20 hiện đại
Bối cảnh mặt bằng

Nhà ở với thiết kế mái Thái giật cấp, sử dụng mái phụ cân đối với mái chính. Hệ thống cửa hiện đại sử dụng chất liệu nhôm kính cho không gian sáng và hiện đại. Tăng tính tương thích với hình khối vuông vắn chủ đạo của ngôi nhà.
Công năng sử dụng

Các kiến trúc sư luôn triển khai nội thất những căn nhà ống theo phong cách hiện đại và tối giản. Với căn nhà 5x20m thì việc sắp xếp, bố trí sẽ thuận lợi và đơn giản hơn. Việc chọn lựa trang thiết bị nội thất cần thống nhất, đồng đều để không rối mắt và bừa bộn. Sử dụng tông màu sáng cũng giúp không gian thêm sạch sẽ và rộng rãi hơn.


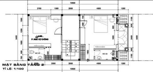
3.10. Mẫu nhà ống 2 tầng mái Thái 5x15m đẹp
Bối cảnh mặt bằng

Nhà ống 2 tầng mái Thái mặt tiền 5m được thiết kế hết sức đơn giản không quá cầu kỳ nhưng với những chi tiết vuông vắn sẽ tạo cảm giác trang nhã cho căn nhà. Phần mái Thái được thiết kế đa dạng phong cách từ cầu kỳ hay đơn giản, theo phong cách cổ điển hay hiện đại cũng đều toát lên vẻ sang trọng và đẳng cấp.
Công năng sử dụng
Với diện tích 5x15m gia chủ yêu cầu thiết kế một không gian sống rộng rãi thoải mái phù hợp với nhu cầu sử dụng của gia đình 4 người.

Căn nhà vẫn được thiết kế theo xu hướng phòng khách rộng rãi tạo ra một lối đi thông thoáng tới nhà bếp. Nội thất phù hợp được kê sát tường tiện lợi cho quá trình sinh hoạt, thư giãn và tối ưu diện tích. Phòng ngủ và nhà vệ sinh chung vẫn đầy đủ chức năng tiện dụng.
Tầng 2 có 2 phòng ngủ kèm 1 nhà vệ sinh, phòng thờ có lan can thoáng mát tạo không gian tâm linh vừa nghiêm trang vừa thư thái.

Những căn nhà với diện tích nhỏ thường được lắp đặt hệ thống cầu thang dây vừa tạo thẩm mỹ vừa tiết kiệm tối đa diện tích căn nhà.
Ở những thành phố lớn, các khu đô thị đông dân cư thì mẫu nhà ống mái Thái đang là kiến trúc rất phổ biến. Với quỹ đất hạn hẹp tại thành thị, một ô đất với mặt tiền 5m chính là niềm mơ ước của bao người. Chính vậy, mẫu nhà ống 2 tầng mái Thái mặt tiền 5m đã thu hút được rất nhiều chủ đầu tư.

